Zastupitelský úřad České republiky v Ottawě, Kanada

Zastupitelský úřad České republiky v Ottawě, Kanada
Studie 1998
Projekt
Realizace
Autoři Petr Burian, Jan Šépka

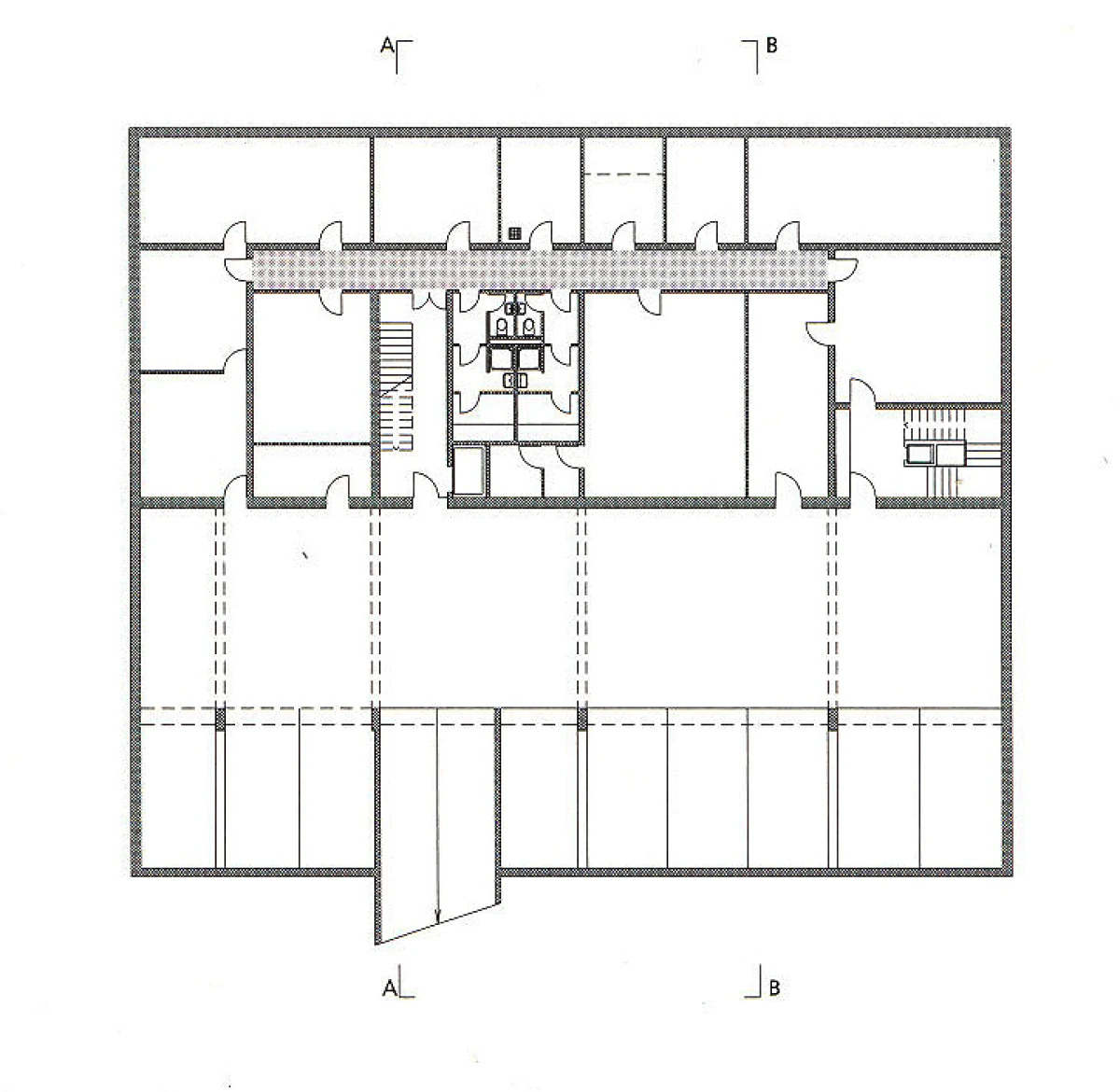
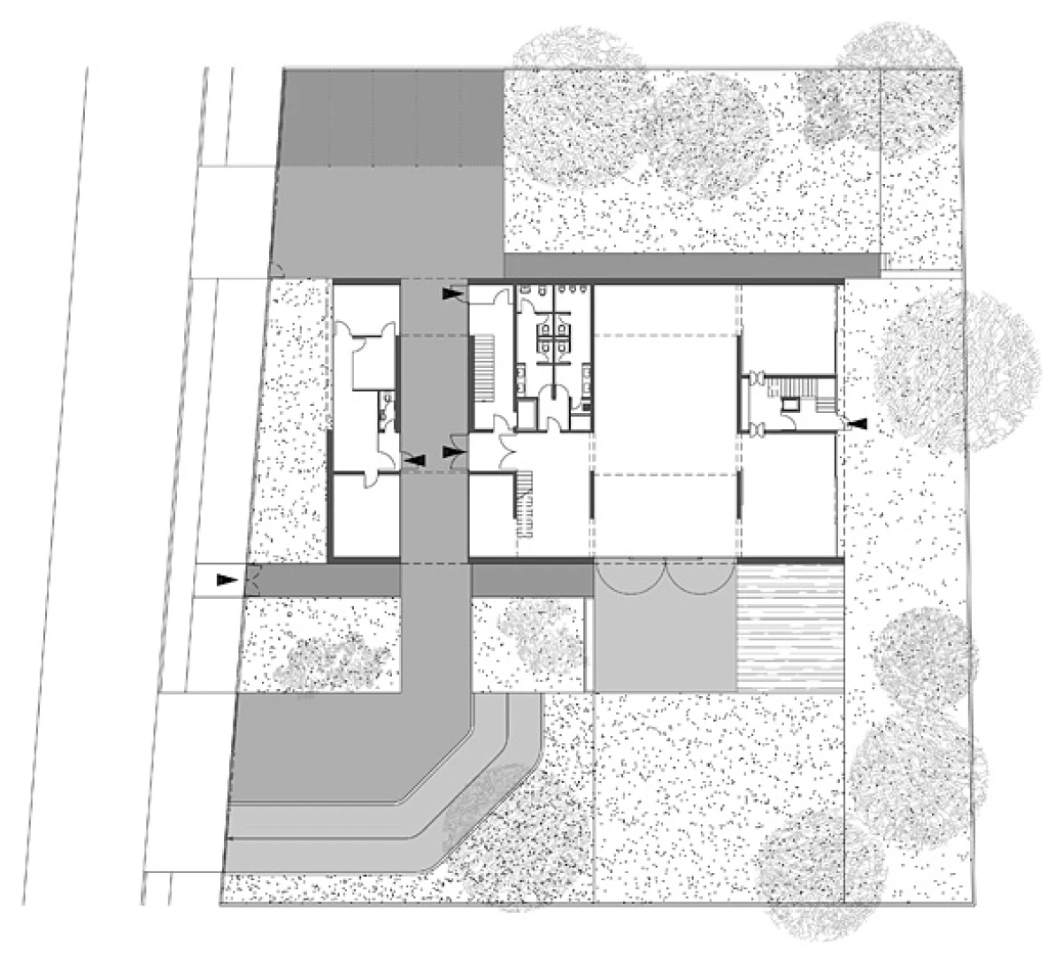
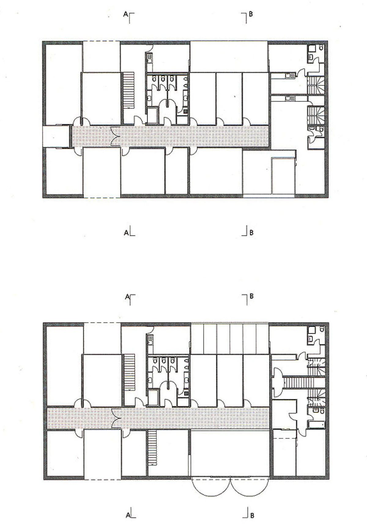
Budova rozděluje přibližně čtvercovou parcelu na větší, osluněnou reprezentační část a na menší, více soukromou zahradu. Objekt je formován jako kvádr, do jehož hmoty jsou vyřezány otvory umožňující prosvětlení a provětrání vnitřních prostor. Výsledek je objem vytesaný z jednoho kusu matérie, který v místech, kde byla odebrána hmota, nechává nahlédnout do svých útrob. Venkovní plášť kvádru je opatřen probarvenou šedou omítkou, otvory včetně interiérů přiléhajících místností jsou zvýrazněny pastelovými barvami. Jde tedy o princip kontrastu „obalu a vnitřku“. Jednotlivé průrazy (prostory) se tak setkávají uvnitř objektu v podobě různých barev.

v roce 1998 1. odměna v architektonické soutěži