Úpravy zámeckého návrší, Litomyšl

Úpravy zámeckého návrší, Litomyšl
Studie 2007
Projekt
Realizace 2011-2016
Autoři ŠÉPKA architekti 2014–2016, Petr Hájek, Tomáš Hradečný, Jan Šépka, HŠH architekti 2007–2014
Spolupráce Jan Kolář, Vítězslav Kůstka, Helena Línová, Radka Šimková, Lucie Vogelová

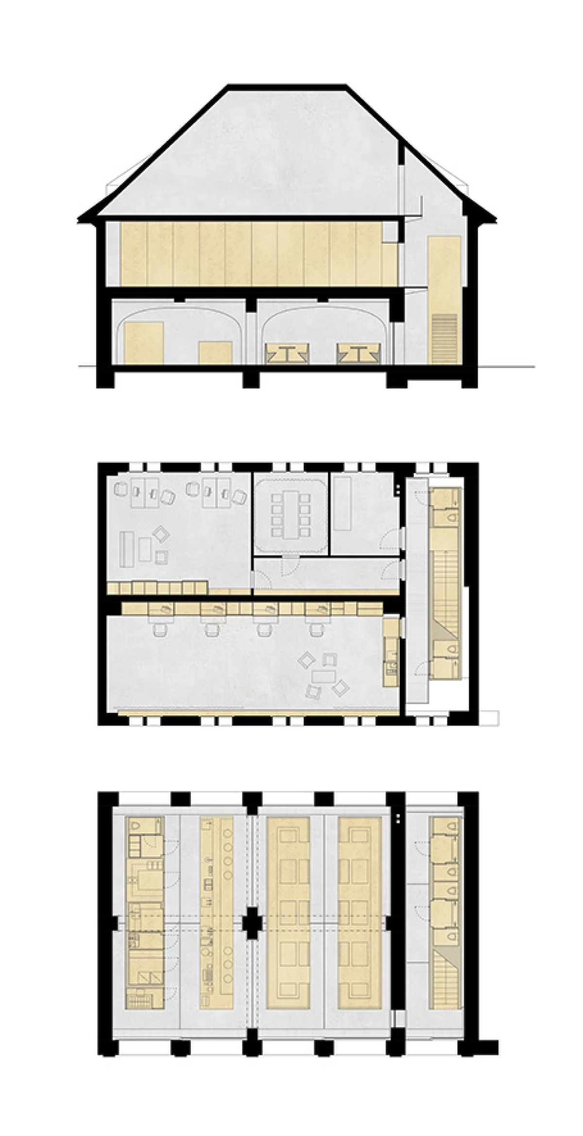
Zámek společně se soustavou historických staveb a přilehlými parky vytvářel po staletí zcela výjimečný areál. Naše koncepce vychází z památkové a architektonické jedinečnosti areálu, který respektujeme jako celek, a doplňujeme ho jen v některých místech. Do rekonstruovaných objektů vkládáme nové prvky, které se jasně odlišují od historických částí. Všechny nové prvky jsou navrženy jako kombinace oceli a průsvitného laminátu lehce jantarové barvy. Záměrem bylo umístit na zámecké návrší jakési jantarové šperky, které budou mít své kouzlo odpovídající místnímu geniu loci. Historická budova jízdárny byla rekonstruována za účelem vybudování multifunkčního, variabilního sálu, ve kterém lze pořádat koncerty pro komorní hudbu, promítaní filmů, konference, ale i výstavy. Jelikož jsme chtěli co nejméně zasahovat do historicky cenné budovy, zvolili jsme koncept vloženého posuvného objektu, který může jízdárnu rozdělit, a umožnit tak rychlou proměnu funkce a akustiky. Nový objekt je složen ze dvou částí, a to posuvného čela a pevného korpusu. V korpusu jsou umístěny šatny účinkujících, prostor techniků a sociální zařízení pro hosty. Posuvné čelo pojíždí po kolejnicích v podlaze a jako paraván vymezuje prostor pro jednotlivé akce. Podlahu tvoří praktikábly, jež umožňují samostatný zdvih pódia, elevaci hlediště nebo individuální členění podlahy při výstavách. Obdobně jsme pracovali i s budovou bývalé kočárovny, která se díky své neobyčejné poloze nabízela pro zřízení kavárny v přízemí. Druhé patro je využito pro kancelář správce zámeckého areálu. V celém objektu došlo k odstranění dodatečně vložených příček i novodobého schodiště. Do takto upravených prostor byly v místech, kde kdysi stávaly kočáry, vsazeny nové prvky z průsvitného laminátu, které představují nezbytné sociální zázemí kavárny, bar a sezení. Vnější vzhled fasády jízdárny i kočárovny by měl splynout s okolními stavbami, se kterými i v minulosti vytvářel ucelený komplex, a proto byla vnější fasáda opatřena světlým vápenným štukem. V návaznosti na kavárnu, byl realizován objekt letního pavilónu, který má poskytovat přirozené zázemí dětským aktivitám. Tento objekt představuje pavilon, jakýsi stan sestavený z trojúhelníkových segmentů z lehké ocelové konstrukce, jejíž výplň tvoří průsvitná plátna. Stan je inspirován dětským drakem, který se snesl do zámeckých zahrad a oddělil hospodářské budovy od parku. Součástí celkových úprav bylo také řešení anglického parku, v němž je hlavní důraz kladen na vodní element. Vodní prvek začíná přirozeně v nejvyšším bodě, kde je dochované zámecké jezírko. Trasa vedení vody vychází z největší vzdálenosti mezi stromy a je navržena za pomocí výpočetní techniky metodou geometrie voronoi. V rámci řešení celého parku bylo navrženo ještě několik drobných prvků, jako je například voliéra pro pávy, která vychází svým tvarem z keře, na kterém mohou pávi sedět. Dalším drobným prvkem jsou lavičky, které představují jakýsi krystal, inspirovaný zámeckým sgrafitem.