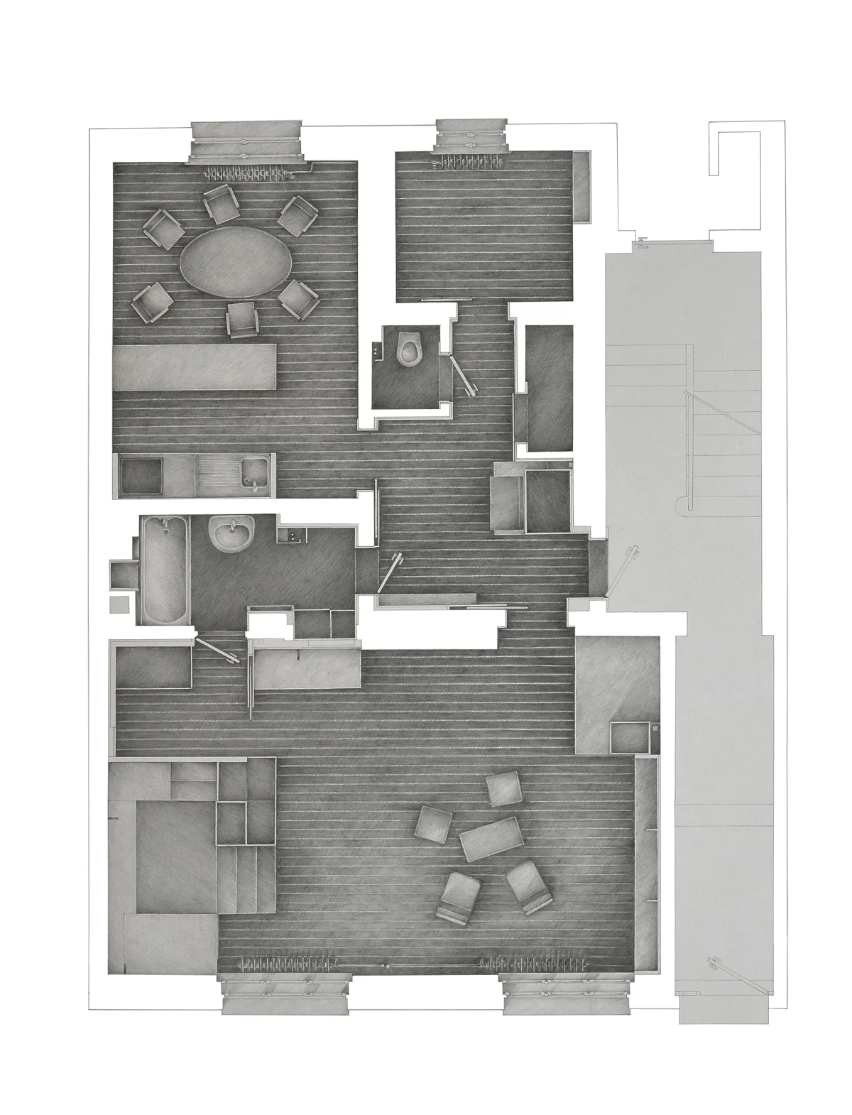
Interiér rodinného domu, Praha

Interiér rodinného domu, Praha
Studie 1995
Projekt
Realizace 1995-1997
Autoři Jan Šépka

Interiér byl řešen v celém přízemí třípodlažního řadového domu z dvacátých let 20. století. Stávající dispozice představovala tři menší pokoje, z nichž ani jeden nebylo možné považovat za ústřední místnost. Základní myšlenkou je zrušení dělící příčky mezi dvěma místnostmi za hlavní fasádou a vytvoření obývacího pokoje, který plní přes den funkci obytného prostoru a pracovny ve vyvýšené pozici. Ve vytvořeném stupni je pak umístěna výsuvná dvoulůžková postel. Vestavěný nábytek umožňuje variabilitu prostoru a je možné rychle přeměnit obývací místnost v ložnici nebo pracovnu. Byt je tedy možné rozkládat nebo skládat podle potřeby. Většina místností má podobný „otvíravý charakter“, přičemž za stěnami ze světlého buku se nachází výsuvné části nábytku, které jsou pojednány barevně.

V roce 1998 čestné uznání v Grand Prix Obce architektů