Hudebně dramatická laboratoř JAMU, Brno

Hudebně dramatická laboratoř JAMU, Brno
Studie 2003
Projekt
Realizace
Autoři Petr Burian, Petr Hájek, Tomáš Hradečný, Simona Kučírková, Jan Šépka

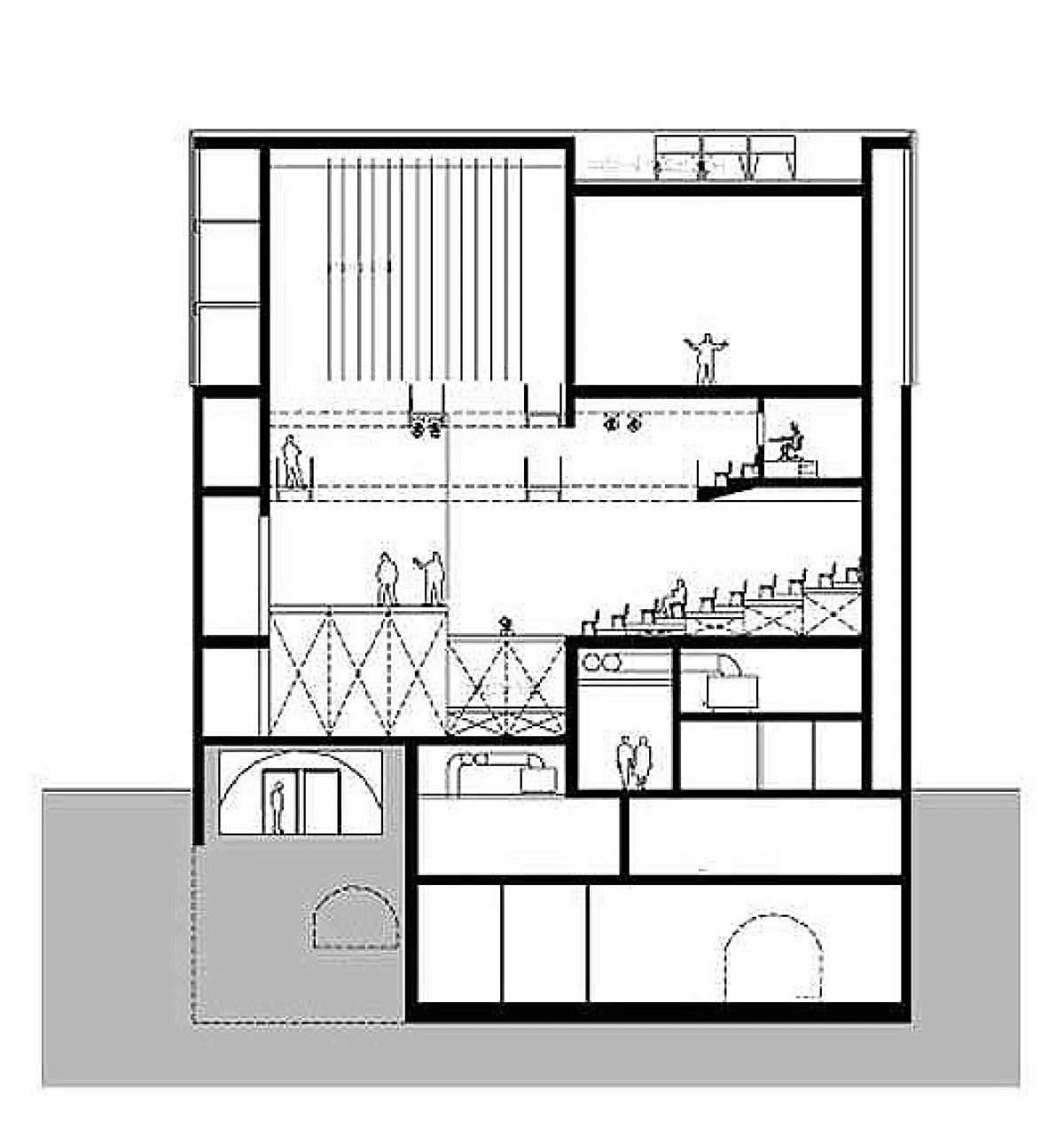
Stavba díky experimentálnímu a školnímu provozu nemusí působit majestátním dojmem, který je charakteristický spíše pro městská divadla, ale může být především svobodným uměleckým prostředím. Tyto úvahy směřovaly náš návrh k inspiraci dílnou-továrnou „na výrobu umění“s méně „škrobenou“ a okázalou divadelní atmosférou. Rozvody a instalace jsou po vzoru průmyslových hal přiznány a vedeny účelně po povrchu. Stavba je zabalena do průsvitného obalu, který poodkrývá její útroby. Naším záměrem bylo docílit zajímavé atmosféry objektu laboratoře JAMU za použití levných a neokázalých prostředků.

V roce 2003 odměna v architektonické soutěži