Dostavba Staroměstské radnice, Praha

Dostavba Staroměstské radnice, Praha
Studie 1996
Projekt
Realizace
Autoři Jan Šépka
Spolupráce Ludmila Hejdová, Lucie Kavanová, Eva Honznojmanová a Eva Joklová

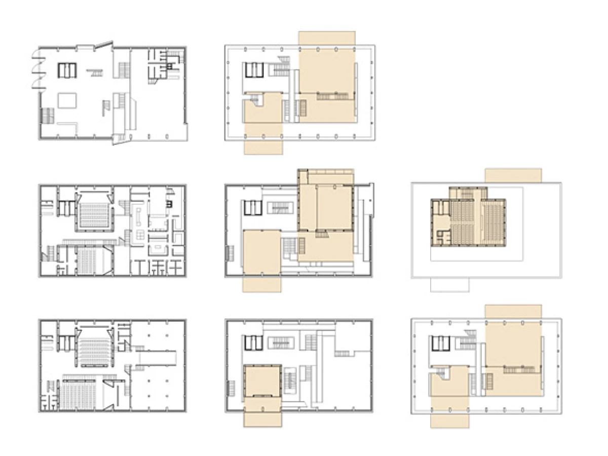
Hlavní reprezentační budova je situována do pozice solitéru, jak svoji distancí od Staroměstské radnice, tak i vykročením směrem do náměstí. Novostavba odcloňuje kostel sv. Mikuláše do dalšího plánu a vytváří pro něj původní náměstí. Koncepce hlavní reprezentační budovy je řešena jako jeden velký prostor na obdélníkovém půdorysu, do kterého jsou vsazeny celkem tři kvádry. Tyto kvádry ukryté pod vnější slupkou objektu jsou de facto jádrem této budovy. Prostory mezi výškově rozdílně situovanými „krabicemi“ a pláštěm budovy jsou využity pro komunikační spojení, a to jak schodišti a výtahy, tak i rampou, která plynule prochází všemi přístupnými úrovněmi a je ukončena v prosvětleném ochozu v horní části domu. Z hlediska hierarchie využití je nejvýznamnější částí sál pro zasedání městské rady, který je situován ve vrchních partiích objektu. Další z uvedených kvádrů slouží jako výstavní síně.